Projekt Kleinmachnow

Neubauprojekt

Kleinmachnow

Lagebeschreibung:

Zwischen Berlin und Potsdam, am südlichen Stadtrand Berlins, liegt unterhalb des gut situierten Berliner Bezirks Zehlendorf in Kleinmachnow die Neue Hakeburg.  Die Neue Hakeburg und ihre Lage stehen für Natur und Entspannung in unmittelbarer Großstadtnähe: Genießen Sie die einzigartige Melange aus Burgresidenz und modernem Luxus.  Das idyllische Kleinmachnow bietet eine Vielfalt an Einkaufsmöglichkeiten und Freizeitaktivitäten und liegt verkehrsgünstig zwischen den Großstädten Berlin und Potsdam. In fußläufiger Entfernung zum Objekt befinden sich mehrere Kita, Grund- sowie Oberschulen.

Das Neubauprojekt ist gut mit dem Auto erreichbar, da es in der Nähe der Bundesstraße B1 liegt, die eine direkte Verbindung nach Berlin und Potsdam bietet. Die Autobahn A115 ist ebenfalls nur wenige Fahrminuten entfernt und ermöglicht eine schnelle Anbindung an den Berliner Ring und darüber hinaus. Der öffentliche Nahverkehr ist durch verschiedene Buslinien gut ausgebaut, die Kleinmachnow mit den umliegenden Städten und Berliner Stadtteilen verbinden. Der nächstgelegene S-Bahnhof ist "Wannsee" (S1 und S7), von dem aus man bequem das Berliner Stadtzentrum erreicht.

Projektbeschreibung:

Die zwei Neubauten entstehen in direkter Nachbarschaft zur Neuen Hakeburg. Die beiden Gebäude sind nahezu identisch - unterscheiden sich in der Bauweise und Wohnungsaufteilung nur geringfügig. Sie integrieren sich hervorragend in das Ensemble der historischen Neuen Hakeburg und sind umgeben von einem großen Naturschutzgebiet. Am Ufer des Machnower Sees entsteht eine Steganalage für die Boote.

Die einzigartigen Baukörper verfügen jeweils über 9 bzw. 10 Wohnungen mit Wohnflächen von ca. 58,06 m² bis ca. 170,07 m². Von der klassischen 2-Zimmer-Wohnung bis hin zu einer großen Maisonette-Wohnung mit großen Terrassen, ist alles dabei.

Unter den zwei Neubauten entsteht eine gigantische Tiefgarage mit 63 Stellplätzen, die zusätzlich zu den Bewohnern der Neubauten, auch von den Bewohnern der Burg und der Remise genutzt werden.

Der Fitness- & Wellnessbereich im Untergeschoss der Burg kann auch von den Bewohnern der Neubauten genutzt werden.

Gerne senden wir Ihnen auf Anfrage eine Übersicht der verfügbaren Eigentumswohnungen zu.

Weitere Wohnungen entstehen im Torhaus der Neuen Hakeburg - gerne senden wir Ihnen auf Anfrage eine Übersicht der verfügbaren Wohnungen zu.

Wohnung 22

Grundriss_WE-22.jpg

Objektbeschreibung:

Die Wohnung im 1. Obergeschoss bietet eine großzügige Wohn- und Nutzfläche von insgesamt 119,35 m², sowie eine geräumige Terrasse.

Die Wohnung verfügt über eine große Wohnküche, ein Hauptschlafzimmer und zwei weitere Zimmer, die ideal als Kinderzimmer oder Arbeitszimmer genutzt werden können. Ein Gäste-WC sowie ein großes Badezimmer mit einer Badewanne und separaten Dusche ergänzt diese luxuriöse Neubauwohnung. Ein Hauswirtschaftsraum bietet zusätzlichen Stauraum.

Für eine angenehme Wärme sorgt eine Fußbodenheizung in der gesamten Wohnung.

In der Tiefgarage befinden sich ausreichend Stellplätze für alle Bewohner. Für Wohnungen bis zu 80 m² muss ein Stellplatz und für Wohnungen über 80 m² müssen 2 Stellplätze laut der Stellplatzsatzung erworben werden.
Preis auf Anfrage.

Wohnung 25.2

Grundriss_WE-25-2.jpg

Objektbeschreibung:

Die Wohnung im 3. Obergeschoss bietet eine großzügige Wohn- und Nutzfläche von insgesamt 79,95 m² sowie zwei sehr geräumige Balkone.

Die Wohnung verfügt über eine große Wohnküche und ein geräumiges Schlafzimmer. Ein luxuriöses Badezimmer mit einer Badewanne und einer separaten Dusche komplettiert das Angebot. Ein zusätzlicher Abstellraum neben einer großflächigen Diele sorgt für zusätzlichen Stauraum.

Für eine angenehme Wärme sorgt eine Fußbodenheizung in der gesamten Wohnung.

In der Tiefgarage befinden sich ausreichend Stellplätze für alle Bewohner. Für Wohnungen bis zu 80 m² muss ein Stellplatz und für Wohnungen über 80 m² müssen 2 Stellplätze laut der Stellplatzsatzung erworben werden.
Preis auf Anfrage

Wohnung 27.2

Grundriss_WE27-2.jpg

Objektbeschreibung:

Die Wohnung im 1. Obergeschoss bietet eine großzügige Wohn- und Nutzfläche von insgesamt 79,99 m², sowie eine geräumige Terrasse.

Die Wohnung verfügt über eine große Wohnküche, ein Hauptschlafzimmer und ein weiteres Zimmer, das ideal als Kinderzimmer oder Arbeitszimmer genutzt werden kann. Ein großes Badezimmer mit einer Badewanne und separaten Dusche sowie ein Doppelhandwaschbecken ergänzt diese luxuriöse Neubauwohnung. 

Für eine angenehme Wärme sorgt eine Fußbodenheizung in der gesamten Wohnung.

In der Tiefgarage befinden sich ausreichend Stellplätze für alle Bewohner. Für Wohnungen bis zu 80 m² muss ein Stellplatz und für Wohnungen über 80 m² müssen 2 Stellplätze laut der Stellplatzsatzung erworben werden.
Preis auf Anfrage.

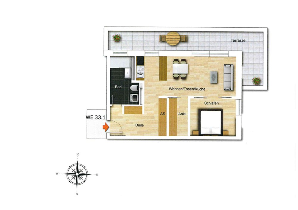
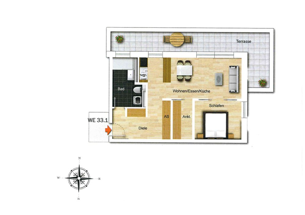
Wohnung 33.1

Grundriss_WE33-1.jpg

Objektbeschreibung:

Die Wohnung im 3. Obergeschoss bietet eine großzügige Wohn- und Nutzfläche von insgesamt 58,06 m² sowie einen sehr geräumigen Balkon.

Die Wohnung verfügt über eine große Wohnküche und ein geräumiges Schlafzimmer. Ein luxuriöses Badezimmer mit einer Dusche komplettiert das Angebot. Eine Ankleide sorgt für zusätzlichen Stauraum.

Für eine angenehme Wärme sorgt eine Fußbodenheizung in der gesamten Wohnung.

In der Tiefgarage befinden sich ausreichend Stellplätze für alle Bewohner. Für Wohnungen bis zu 80 m² muss ein Stellplatz und für Wohnungen über 80 m² müssen 2 Stellplätze laut der Stellplatzsatzung erworben werden.
Preis auf Anfrage

Bilder & Visualisierungen

Grundriss_WE-22.jpg

Wohnung 22

Grundriss_WE-25-2.jpg

Wohnung 25.2

Grundriss_WE27-2.jpg

Wohnung 27.2

Grundriss_WE33-1.jpg

Wohnung 33.1

Ansicht-1-v2.jpg

Visualisierung Aussenansicht

Ansicht-3-v2.jpg

Visualisierung Aussenansicht

Bad-Version-2.jpg

Visualisierung Bad

DJI_0606.jpg

Baufortschritt

DJI_0613.jpg

Baufortschritt

DJI_0621.jpg

Baufortschritt

Nicht das Passende dabei? Wir machen uns gern auf die Suche!

Aktuelle Neubauprojekte in Berlin

Neubau zum Kauf
Neubau zum Kauf

Zehlendorf diverse Wohnungen

Neubau zum Kauf

Oranienburg diverse Wohnungen

Sie möchten mehr über die Objekte erfahren?